3G三螺桿泵和其它容積泵 樣,當泵的排出口完全封閉時,泵內的壓力就會上升到使泵損壞或使電動機過載的危險程度。所以,在泵的吸排口處,就必須設置安全閥。
3G三螺桿泵主要是由固定在泵體中的襯套(泵缸)以及安插在泵缸中的主動螺桿和與其嚙合的兩根從動螺桿所組成。三根互相嚙合的螺桿,在泵缸內按每個導程形成為 個密封腔,造成吸排口之間的密封。
泵工作時,由于兩從動螺桿與主動螺桿左右對稱嚙合,故作用在主動螺桿上的徑向力完全平衡,主動螺桿不承受彎曲負荷。從動螺桿所受徑向力沿其整個長度都由泵缸襯套來支承,因此,不需要在外端另設軸承,基本上也不承受彎曲負荷。在運行中,螺桿外圓表面和泵缸內壁之間形成的 層油膜,可防止金屬之間的直接接觸,使螺桿齒面的磨損大大減少。
螺桿泵工作時,兩端分別作用著液體的吸排壓力,因此對螺桿要產生軸向推力。對于壓差小于10千克力/cm2的小型泵,可以采用止推軸承。此外,還通過主動螺桿的中央油孔將高壓油引入各螺桿軸套的底部,從而在螺桿下端產生 個與軸向推力方向相反的平衡推力。
3G三螺桿泵的軸封,通常采用機械軸封,并可根據工作壓力的高低采取不同的形式。
三螺桿泵調整流量的方法
般來說,用戶對螺桿泵流量的要求是恒定不變的,但有些用戶會根據生產的需要要求調節螺桿泵的流量,具體方法有以下三種。
1、通過變頻電機加變頻器的方法調節螺桿泵的流量。
2、通過普通電機加變頻器的方法調節螺桿泵的流量。
3、通過調速電機調節螺桿泵的流量。
3G三螺桿泵優點:
1、壓力和流量范圍寬闊,流量范圍0.2~600m3/h 高工作壓力可達6.3MPa;
2、運送液體的種類和粘度范圍寬廣;
3、因為泵內的回轉部件慣性力較低,故可使用很高的轉速;
4、吸入性能好,具有自吸能力;
5、流量均勻連續,振動小,噪音低;
6、與其它回轉泵相比,對進入的氣體和污物不太敏感;
7、結構堅實,安裝保養容易;
8、三螺桿泵,自吸;
9、由于部件通用組合系列化有多種結構,可用于臥式,法蘭式和立式安裝;
10、根據所輸送介質需要還可提供加熱或冷卻結構;

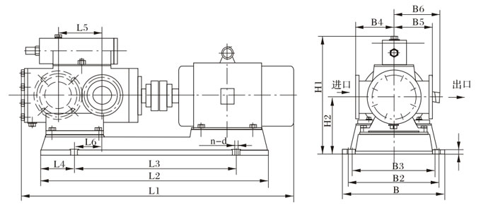
3G45×4-100×2外形及安裝尺寸

| 泵型號 | 機座號 | L1 | L2 | L3 | L4 | L5 | L6 | B1 | B2 | B3 | B4 | B5 | B6 | H1 | H2 | H3 | n-d |
| 45×4 | Y100L Y132S Y132M Y160M |
890 985 1025 1119 |
740 809 838 932 |
472 518 538 610 |
145 145 145 160 |
209 209 209 209 |
85 85 85 73.5 |
325 380 380 429 |
285 340 340 389 |
285 340 340 340 |
130 130 130 130 |
140 140 140 140 |
180 210 210 265 |
350 400 400 470 |
205 217 217 245 |
25 25 25 25 |
4-φ18 4-φ18 4-φ18 4-φ18 |
| 60×4 | Y160M Y160L Y200L |
1297 1342 1475 |
1017 1061 1157.5 |
700 700 757.5 |
178 178 183 |
285 285 285 |
100 100 100 |
460 460 525 |
410 410 475 |
370 370 370 |
170 170 170 |
175 175 175 |
265 265 310 |
585 585 585 |
270 270 310 |
30 30 30 |
4-φ23 4-φ23 4-φ23 |
| 70×2 | Y132M Y160M |
1199 1289 |
930 1012 |
587 652 |
159 160 |
165 165 |
71 71 |
420 465 |
380 425 |
380 380 |
170 170 |
170 170 |
210 265 |
458 500 |
275 275 |
30 30 |
4-φ23 4-φ23 |
| 70×4 | Y180M Y200L |
1404 1509 |
1199 1277 |
780.5 795 |
230.5 230.5 |
305 305 |
145 145 |
495 540 |
455 500 |
380 380 |
170 170 |
170 170 |
285 310 |
540 585 |
290 310 |
30 35 |
4-φ23 4-φ23 |
| 80×2 | Y160M Y180M |
1244 1308 |
1043 1092 |
663 707 |
165 165 |
204 204 |
110 110 |
470 480 |
430 440 |
430 440 |
190 190 |
190 190 |
265 285 |
505 540 |
280 290 |
30 30 |
4-φ23 4-φ23 |
| 80×4 | Y200L Y225M |
1570 1640 |
1241 1297 |
826 875 |
204 204 |
360 360 |
145 145 |
525 580 |
475 530 |
410 410 |
190 190 |
190 190 |
315 345 |
585 640 |
310 335 |
30 30 |
4-φ23 4-φ23 |
| 100×2 | Y180L Y225S |
1513 1623 |
1265 1336 |
821 865 |
195 195 |
254 254 |
140 140 |
520 595 |
460 535 |
460 460 |
220 220 |
220 220 |
285 345 |
580 640 |
330 335 |
30 30 |
4-φ23 4-φ23 |
3G三螺桿泵規格參數表
| 型號 |
排出壓力 P MPa |
流量 Q | 轉速n r/min |
必需汽蝕余量 rm | 效率η % | 電動機 | ||
| m3/h | L/min | 功率kw |
型號 | |||||
| 25×4-46 | 1.0 | 0.8 | 13 | 1450 | 4 | 62 | 0.75 | Y802-4 |
| 2.5 | 0.6 | 10 | 60.6 | 1.5 | Y90L-4 | |||
| 1.0 | 2.0 | 33 | 2900 | 4.5 | 59.4 | 1.5 | Y90S-2 | |
| 2.5 | 1.6 | 26 | 69 | 3 | Y100L-2 | |||
| 30×4-46 | 1.0 | 1.6 | 26 | 1450 | 4.5 | 63.5 | 1.1 | Y90S-4 |
| 2.5 | 1.2 | 20 | 61 | 2.2 | Y100L1-4 | |||
| 1.0 | 3.6 | 60 | 2900 | 5 | 60 | 2.2 | Y90L-2 | |
| 2.5 | 3.2 | 53 | 69 | 4 | Y112M-2 | |||
| 36×4-46 | 1.0 | 2.8 | 46 | 1450 | 4.5 | 66 | 2.2 | Y100L1-4 |
| 2.5 | 2.4 | 40 | 66.5 | 4 | Y112M-4 | |||
| 1.0 | 6.5 | 108 | 2900 | 5 | 60.5 | 4 | Y112M-2 | |
| 2.5 | 6 | 100 | 72 | 7.5 | Y132S2-2 | |||
| 42×4-46 | 1.0 | 4.8 | 80 | 1450 | 5 | 62 | 4 | Y112M-4 |
| 2.5 | 4.2 | 70 | 73 | 5.5 | Y132S1-4 | |||
| 1.0 | 10.5 | 175 | 2900 | 5.5 | 61 | 5.5 | Y132S1-2 | |
| 2.5 | 10 | 166 | 72 | 15 | Y160M2-2 | |||
| 45×4-46 | 1.0 | 6.3 | 106 | 1450 | 5 | 70 | 3 | Y100L2-4 |
| 2.5 | 5.9 | 99 | 74 | 7.5 | Y132M-4 | |||
| 1.0 | 13.5 | 225 | 2900 | 5.5 | 60 | 7.5 | Y132S2-2 | |
| 2.5 | 13 | 217 | 75 | 15 | Y160M2-2 | |||
| 60×4-46 | 1.0 | 15.5 | 255 | 1450 | 5 | 71.3 | 11 | Y160M-4 |
| 2.5 | 14.5 | 245 | 74 | 15 | Y160L-4 | |||
| 1.0 | 32 | 533 | 2900 | 5.5 | 63 | 18.5 | Y160L-2 | |
| 2.5 | 31.5 | 525 | 77 | 37 | Y200L2-2 | |||
| 70×2-46 | 0.6 | 24 | 400 | 1450 | 5 | 71 | 7.5 | Y132M-4 |
| 1.0 | 23.5 | 390 | 75 | 11 | Y160M-4 | |||
| 1.6 | 22.5 | 370 | 76 | 15 | Y160L-4 | |||
| 70×4-46 | 1.0 | 24.5 | 408 | 1450 | 5 | 72.5 | 18.5 | Y180M-4 |
| 2.5 | 23.5 | 392 | 79 | 30 | Y200L-4 | |||
| 80×2-46 | 0.6 | 36.5 | 608 | 1450 | 5 | 72 | 11 | Y160M-4 |
| 1.0 | 35 | 594 | 75.5 | 18.5 | Y180M-4 | |||
| 1.6 | 34.5 | 575 | 76.5 | 22 | Y180L-4 | |||
| 80×4-46 | 1.0 | 37 | 617 | 1450 | 5.5 | 72 | 30 | Y200L-4 |
| 2.5 | 35 | 590 | 78.1 | 45 | Y225M-4 | |||
| 100×2-46 | 0.6 | 72.5 | 1208 | 1450 | 5 | 73 | 22 | Y180L-4 |
| 1.0 | 71 | 1183 | 77 | 37 | Y225S-4 | |||
| 1.6 | 60.5 | 1158 | 79 | 45 | Y225M-4 | |||
| 100×4-46 | 1.0 | 72.5 | 1208 | 1450 | 5.5 | 73 | 55 | Y250M-4 |
| 2.5 | 70 | 1165 | 78.5 | 75 | Y280S-4 | |||
| S100×3-27 | 0.6 | 72 | 1196 | 1450 | 6 | 62 | 22 | Y180L-4 |
| 1.6 | 70 | 1160 | 72 | 55 | Y250M-4 | |||
| 2.5 | 69 | 1145 | 74 | 75 | Y280S-4 | |||
| S120×3-27 | 0.8 | 123 | 2055 | 1450 | 6 | 74.5 | 55 | Y250M-4 |
| 1.5 | 120 | 2010 | 76 | 90 | Y280M-4 | |||
| 2.5 | 115 | 1920 | 78.5 | 132 | Y315M-4 | |||


